Toiletvogn 570 3+1+2 Recirkulation
Recirkulationstoiletvognen tilbyder en effektiv og miljøvenlig sanitetsløsning til placeringer med begrænset eller ingen adgang til vand- og kloaktilslutning. Vognen er designet til brug med høj kapacitet og er opdelt i flere sektioner for at sikre et godt flow og korte ventetider.
Recirkulationssystemet reducerer vandforbruget markant ved at filtrere og genanvende skyllevandet, hvilket gør vognen ideel til festivaler, events og fjerntliggende områder, hvor bæredygtighed og logistik spiller en central rolle.
Med et lyst og funktionelt interiør tilbyder vognen en komfortabel brugeroplevelse og kan fungere uafhængigt af eksterne vand- og kloakforbindelser. Det gør recirkulationstoiletvognen til et praktisk og driftssikkert valg i krævende miljøer, hvor effektivitet, kapacitet og reduceret ressourceforbrug er afgørende.
Konstruktion
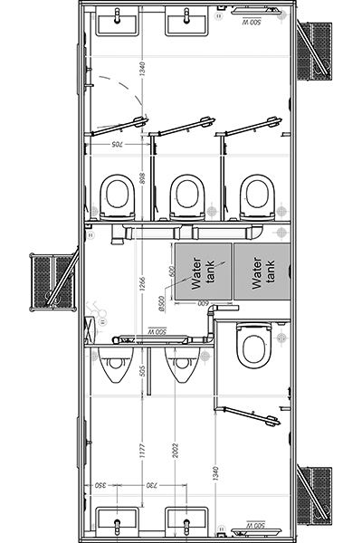
- Størrelse (uden trækstang)
- 5700 x 2280 mm (L x B)
- Trækstang
- 1700 mm
- Indvendig højde
- 210 cm
- Egenvægt
- 1800 kg
- Totalvægt
- 3000 kg
- Chassis
- AL-KO chassis
- Gulv
- IQ-optima vinyl forstærket med glasfiber og honeycomb
- Tag
- Helstøbt buet tag
- Personer
- 6 personer
Faciliteter
- Toiletter
- 4 recirkulationstoiletter
- Urinaler
- 2
- Håndvask
- 4 porcelænsvaske
- Inventar
- 2 spejle, 4 toiletpapirholdere, 4 poseklemmer
- Vinduer
- 2 x 510 x 410 mm
- Trapper
- 1 separat trappe, 2 foldetrapper
El & VVS
- Energi
- Ekstern tilslutning
- Varme
- EL-radiator
- Vandtank
- 300 L x 2
- Kloaktank
- 200 L
- Belysning
- Hvid diffust LED indvendig, Hvid diffust LED udvendig