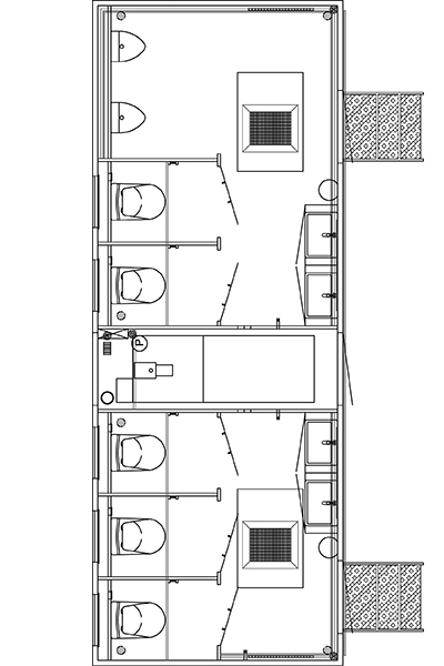
Toiletvogn 660 3+2+2 VIP
VIP-toiletvognen til syv personer tilbyder en eksklusiv og effektiv sanitetsløsning til VIP-områder og arrangementer med høje krav. Vognen er designet til at kombinere luksus med høj kapacitet og er opdelt i to separate sektioner, hvilket sikrer et godt flow og en behagelig brugeroplevelse.
Interiøret har et elegant udtryk med materialer af høj kvalitet, som skaber en førsteklasses oplevelse for gæsterne. Vakuumtoiletter og berøringsfri armaturer understøtter både hygiejne og vandbesparelse, mens integrerede tanke til vand og spildevand gør vognen uafhængig af eksterne tilslutninger.
Opvarmning, klimaanlæg og ventilation sikrer et behageligt indeklima under alle forhold. Gennemtænkte detaljer som ambient LED-belysning, porcelænshåndvaske, makeup-spejle med integreret skærm og godt dagslys bidrager til en ren, rummelig og eksklusiv atmosfære.
Konstruktion
- Størrelse (uden trækstang)
- 6600 x 2480 mm (L x B)
- Trækstang
- 1700 mm
- Indvendig højde
- 230 cm
- Egenvægt
- 2000 kg
- Totalvægt
- 3000 kg
- Chassis
- AL-KO chassis
- Gulv
- IQ-optima vinyl forstærket med glasfiber og honeycomb
- Tag
- Helstøbt buet tag
- Personer
- 7 personer
Faciliteter
- Toiletter
- 5 vakuumtoiletter
- Berøringsfri skyl
- Ja
- Urinaler
- 2
- Håndvask
- 4 porcelænsvaske
- Berøringsfri armatur
- Ja
- Installationer
- Aircondition, Elektrisk ventilation, Eltavle, 2 x håndtørrer
- Inventar
- 2 makeup spejle, 5 toiletpapirholdere, 5 poseklemmer
- Vinduer
- 5 x 510 x 410 mm
- Trapper
- 2 udtrækningstrapper
El & VVS
- Toiletkværn / pumpe
- 1 vakuumpumpe
- Energi
- Ekstern tilslutning
- Strømtilslutning
- 400 V / 16 A CEE
- Varme
- EL-radiator
- Vandtank
- 760 L
- Kloaktank
- 1100 L
- Belysning
- Sort baldakin med hvid LED, Hvid diffust LED udvendig