Badmobil 570
| Basic | Pro | Elite | |
|---|---|---|---|
| Varme | |||
| Udvendigt LED lys | |||
| Teknikrum | |||
| Rød / Grøn LED | |||
| 3 x bad | |||
| 3 x toilet | |||
| 3 x håndvask | |||
| Ventilation | |||
| 3 x vandvarmer | |||
| Gulvvarme |
Beskrivelse
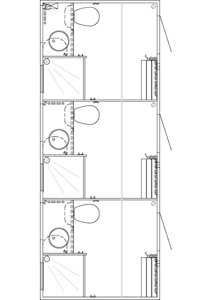
Komplet mobilt badeværelse
Badmobilen er en perfekt løsning, når der er behov for et badeværelse på farten. Den indeholder tre rum, hver med en brusekabine, et toilet med kværn, en bordplade med håndvask, en fast bænk, en radiator, et lille vindue samt elektrisk ventilation.
Vognen har et stilrent design, som giver brugeren en følelse af mere plads, renlighed og komfort. Den anvender LED lysbånd for et behageligt hvidt og energivenligt lys. Vognen er isoleret med XPS-skum og har radiatorer og ventilation, som gør den behagelig at opholde sig i hele året rundt.
Konstruktion
- Størrelse (uden trækstang)
- 5700 x 2280 mm (L x B)
- Trækstang
- 1700 mm
- Indvendig højde
- 210 cm
- Egenvægt
- 1450 kg
- Totalvægt
- 1500 kg
- Chassis
- AL-KO chassis
- Gulv
- IQ-optima vinyl forstærket med glasfiber og honeycomb
- Tag
- Helstøbt buet tag
- Personer
- 3 personer
Faciliteter
- Bad
- 3 brusekabiner
- Toiletter
- 3 vandskyllende toiletter
- Håndvask
- 3 rustfri stålvaske
- Installationer
- Elektrisk ventilation, Eltavle
- Inventar
- 3 bænke, 3 spejle, 3 toiletpapirholdere, 3 poseklemmer, 3 sæbehylder
- Vinduer
- 3 x 510 x 410 mm
El & VVS
- Toiletkværn / pumpe
- Nej
- Energi
- Ekstern tilslutning
- Strømtilslutning
- 230 V / 16 A CEE (udtag), 400 V / 16 A CEE
- Varme
- EL-radiator
- Vandvarmer
- 3 elektriske 30 L
- Belysning
- Hvid diffust LED indvendig