Mandskabsvogn 730 B
| Basic | Plus | Pro | Elite | |
|---|---|---|---|---|
| Opholdsrum med vindue | ||||
| Spisebord og stole | ||||
| Køleskab | ||||
| Mikroovn | ||||
| Vandvarmer | ||||
| Varme | ||||
| Toiletkværn | ||||
| Udvendigt LED lys | ||||
| Tørreskab | ||||
| Teknikrum | ||||
| Gavlhylde | ||||
| Bad | ||||
| 3 x håndvask | ||||
| Toilet | ||||
| Ventilation |
Beskrivelse
Den klassiske løsning til byggepladser
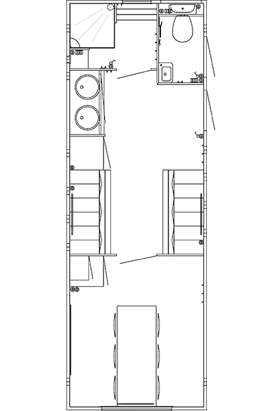
Mandskabsvognen giver dig et rent spiseområde i nærheden af byggepladser med mulighed for bad og omklædning. Vognen indeholder et spiserum, et omklædningsrum med stålskabe, tørreskab og bænk, et vandskyllende toilet med kværn samt et særskilt baderum med bruser, hylder og bænk.
Vognen har et stilrent design, som giver brugeren en følelse af mere plads, renlighed og komfort. Den anvender LED lysbånd for et behageligt hvidt og energivenligt lys. Vognen er isoleret med XPS-skum og har radiatorer og ventilation, som gør den behagelig at opholde sig i hele året rundt.
Konstruktion
- Størrelse (uden trækstang)
- 7300 x 2480 mm (L x B)
- Indvendig højde
- 2100 mm
- Egenvægt
- 1600 kg
- Totalvægt
- 2000 kg
- Chassis
- AL-KO chassis
- Gulv
- IQ-optima vinyl forstærket med glasfiber og honeycomb
- Personer
- 6 personer
Faciliteter
- Bad
- 1 brusekabine
- Toiletter
- 1 vandskyllende toilet
- Håndvask
- 1 porcelænsvask, 2 rustfri stålvaske
- Installationer
- Eltavle, Mikroovn, Tørreskab, Køleskab
- Inventar
- 12 stålskabe, 3 bænke, 3 spejle, 1 toiletpapirholder, 1 poseklemme, Opslagstavle
- Spisebord
- 1800 x 690 mm
- Stole
- 6
- Vinduer
- 1 x 510 x 410 mm, 1 x 1245 x 825 mm
- Trapper
- 2 separate trapper
El & VVS
- Toiletkværn / pumpe
- Nej
- Energi
- Ekstern tilslutning
- Strømtilslutning
- 400 V / 16 A CEE
- Varme
- EL-radiator
- Vandvarmer
- 2 elektriske 30 L
- Belysning
- Hvid diffust LED indvendig